Как правильно спланировать строительство дома под семейную ипотеку: советы архитектора

Правильное планирование строительства дома под семейную ипотеку — важный этап, который поможет создать комфортное, функциональное и энергоэффективное жильё для всей семьи. В этой статье разберём ключевые советы от архитекторов, лучшие проекты домов, а также расскажем, как грамотно оптимизировать бюджет и подготовить необходимые документы для ипотеки.

Планирование дома под семейную ипотеку

Первое, что нужно сделать — проанализировать потребности вашей семьи: количество комнат, необходимая площадь, возможности для расширения. Оптимальным решением станут малоэтажные дома, площадь которых обычно варьируется от 60 квадратных метров и выше, что соответствует требованиям программы по семейной ипотеке. Очень важно заранее согласовать проект с банком и убедиться, что он отвечает федеральным нормативам и требованиям по эскроу-счету.

Лучшие проекты домов для семей

Оптимальные проекты предлагают рациональное использование пространства, предусматривая удобную планировку, которая позволяет экономить жилую площадь без потери функционала. Архитектурные бюро часто разрабатывают готовые решения, аккредитованные для программ семейной ипотеки, но также доступны услуги по индивидуальному проектированию с учётом климатических особенностей и потребностей семьи.
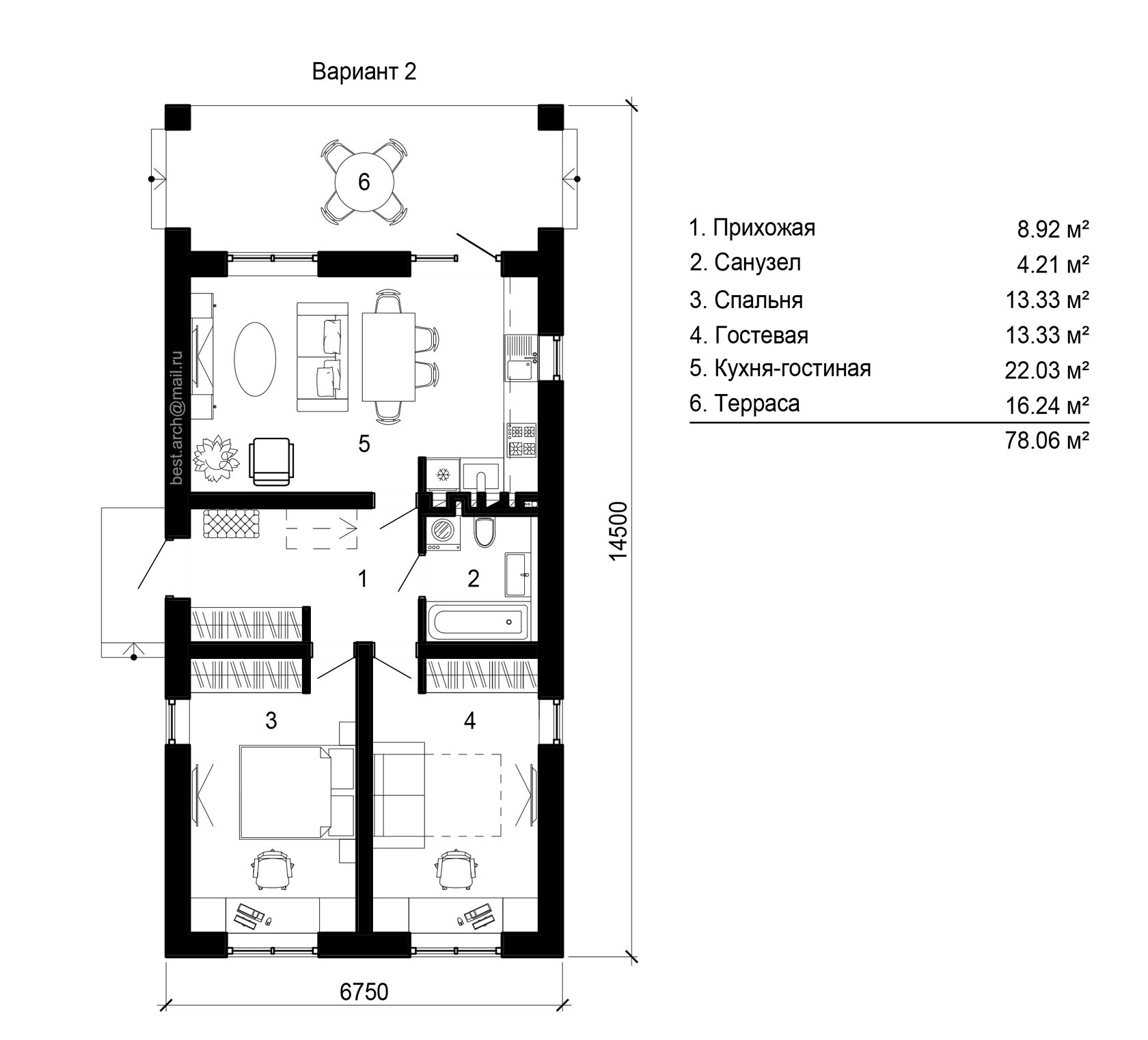
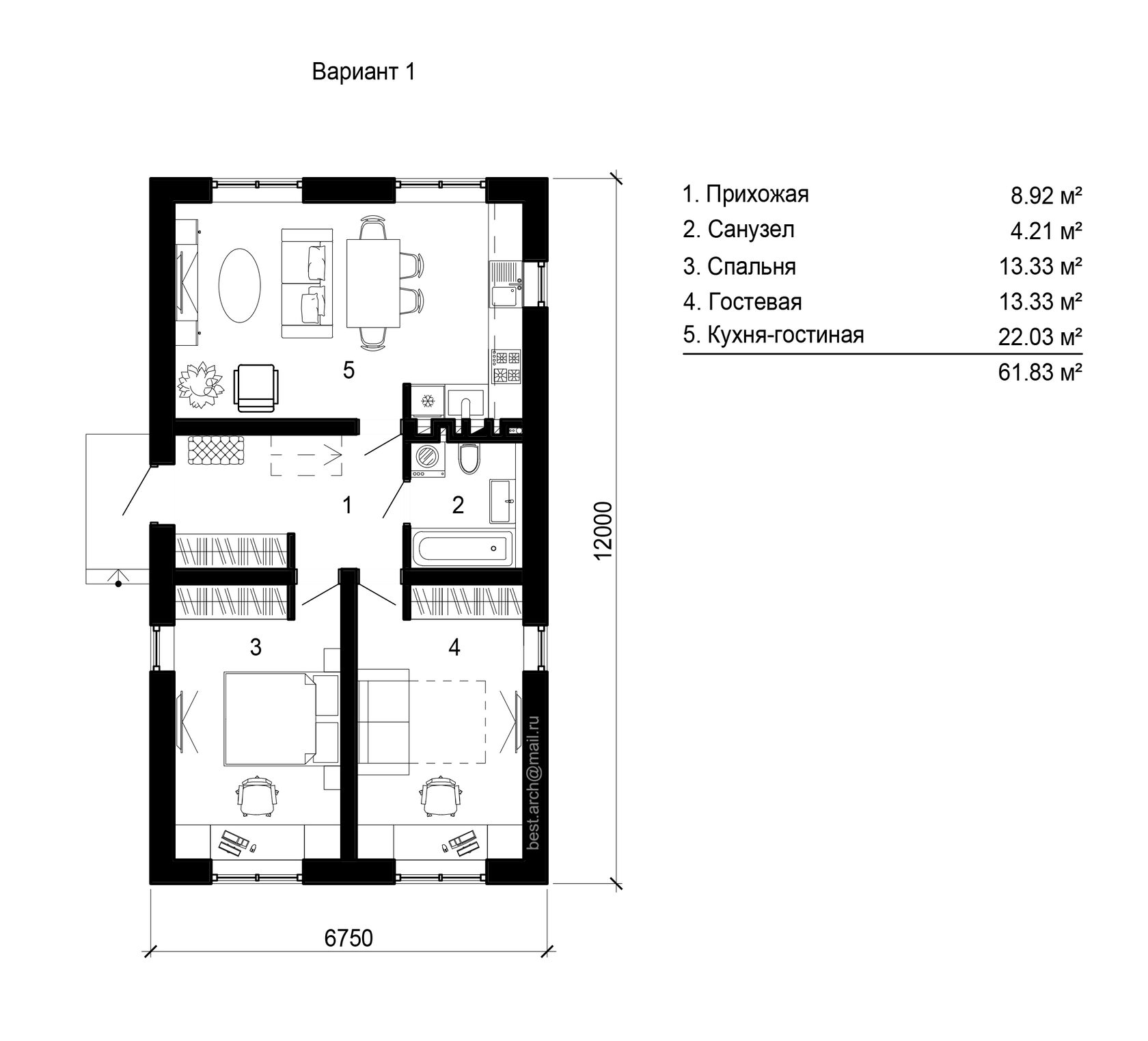
Пример планировки типового проекта П-5 | архитектор Борис Бестужев
Пример планировки типового проекта П-5 | архитектор Борис Бестужев

Энергоэффективность: вклад в комфорт и экономию

При проектировании дома важно использовать современные энергоэффективные технологии — качественную теплоизоляцию, правильную ориентацию здания для максимального использования солнечного света и инновационные системы отопления и вентиляции. Это не только способствует снижению расходов на коммунальные услуги, но и улучшает микроклимат в доме.

Оптимизация бюджета строительства

Чтобы оптимизировать затраты, выбирайте типовые или модульные проекты, тщательно подбирайте материалы и планируйте сроки работы, сотрудничая с проверенными подрядчиками. Использование эскроу-счёта обеспечит прозрачность финансовых операций и защиту от непредвиденных трат.

Документация для ипотечного банка

Для оформления документов банку потребуется полный пакет проектной документации — архитектурные планы, сметы, технические условия и разрешения. Правильная подготовка документов является залогом быстрого и успешного получения кредита.
Типовой проект жилого дома П-5 с сайта best-arch.ru
Правильный подход к планированию и сотрудничество с профессионалами позволят не только оформить выгодную семейную ипотеку, но и построить дом, который станет комфортным и надёжным жильём для вашей семьи на долгие годы.